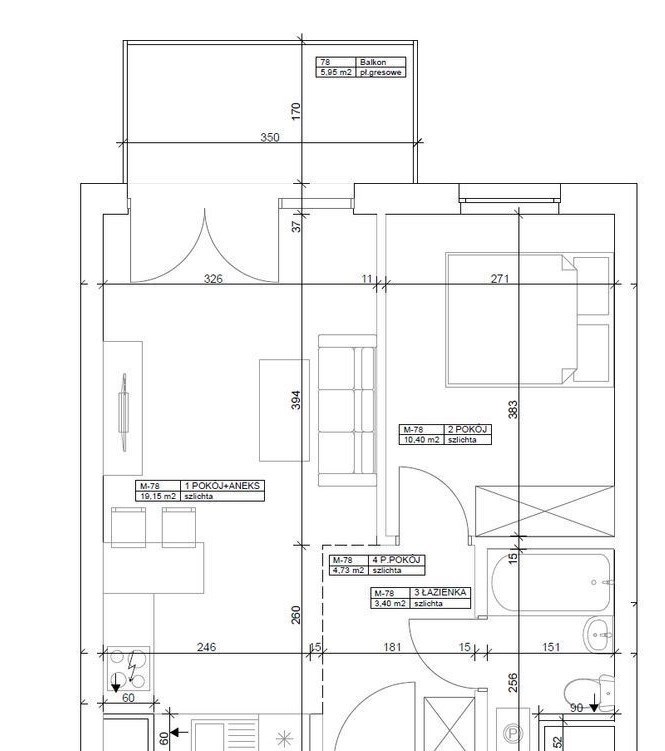
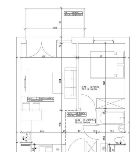
Na sprzedaż nowe, w pełni wyposażone mieszkanie o powierzchni 38 m², zlokalizowane na prestiżowym i nowoczesnym osiedlu Industria.
Idealne miejsce zarówno do zamieszkania, jak i pod wynajem – gotowe do wprowadzenia.
słoneczny salon z aneksem kuchennym 19,15 m,
przytulna sypialnia 10,40 m
łazienka z prysznicem 3,40 m
dodatkowo: komórka lokatorska w hali garażowej.
mieszkanie całkowicie nowe – meble i sprzęty AGD w cenie,
wysoki standard wykończenia,
winda w budynku,
doskonała lokalizacja – w pobliżu sklepy (Lidl, Biedronka), przystanki komunikacji miejskiej,
szybki dojazd do Centrum oraz bliskość Leśnego Parku Kultury i Wypoczynku,
spokojna i bezpieczna okolica z nowoczesną infrastrukturą.
????Cena: 429 000 zł
To idealna propozycja dla osób szukających komfortowego miejsca do życia lub pewnej inwestycji na wynajem.
Nie czekaj – to może być Twoje wymarzone mieszkanie!



